RECHERCHE
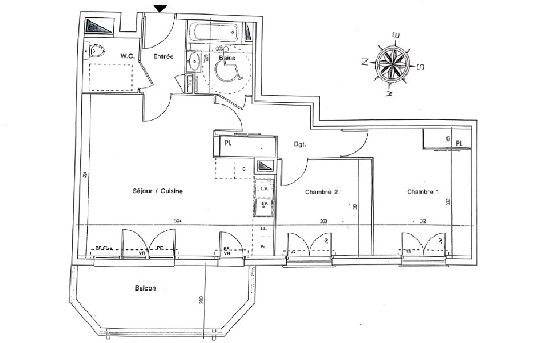
Surface habitable : 64 m²
Nombre de pièces : 3
Chambres : 2
Salles de bain : 1
Consommation énergétique : A - 42

Ascenseur
368.500 €

APPARTEMENT 3 PIECES COEUR DE VILLE


Saint-Raphaël Ref. 2_3199

Agence des Golfs 04 83 120 626<br /> Résidence contemporaine plein coeur de ville. Nous avons le plaisir de vous présenter cet appartement 3 pièces de 63 m2 parfaitement agencés. Un plan efficace sans perte de place : entrée, wc PMR, séjour et cuisine ouverte donnant sur terrasse Ouest (tout de plain pied, dalles sur plots), 2 chambres, rangements et salle de bains. L'appartement est lumineux par ses grandes ouvertures double vitrage. Parking couvert sécurisé. Résidence de 2016, coeur de ville 'tout à pied', gare, commerces, cinéma, plages. Copro 24 lots, charges 1735EUR/an.<br />